East Hall is perfect for large conventions, expos, trade shows, corporate meetings, or community events that require significant floor space and flexible setups. Our team is always happy to discuss your needs to set you up for success with our venue rentals in Huntsville.
The VBC East Hall at a Glance
Ideal for conventions, expos, and trade shows
24,000+ square feet of flexible exhibit space
Direct access to loading docks and breakout areas
Events the East Hall Is Suited For
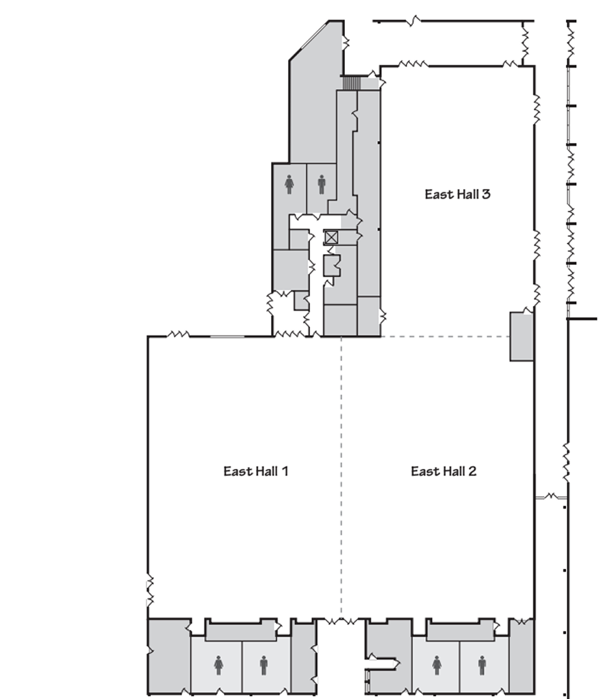
The East Hall is a 24,900 square foot banquet, meeting, and exhibit hall which can be divided into 3 separate areas and multiple configurations, complete with carpet, wall coverings, and acoustical ceiling panels. The East Hall is suitable for banquet, reception, convention, or trade and consumer show venue rentals in Huntsville. Located in the center of the Von Braun Center, the East Hall is close to all parking areas and other meeting rooms within the facility.
What’s Included in Rental Rates
Rental rates include lighting, heating and/or air conditioning, and water, as installed. All labor, supplies, and equipment are considered additional expenses.
Move-in/move-out and rehearsal dates are calculated at 60% of the normal daily rental rates.
Insurance can be obtained by the VBC at the applicable rate.
Full-Service Support for Every Step of the Way

Event Layout & Design Support
Our experienced event services team will assist with floor planning, seating arrangements, and booth configurations to maximize your space for optimal traffic flow.

Audio-Visual & Production
From microphones and projectors to stage lighting and sound, VBC’s in-house A/V professionals ensure your presentations, performances, or keynotes run flawlessly.

Catering & Hospitality
Keep guests and exhibitors refreshed with on-site catering from the VBC culinary team. Choose from buffet-style service, plated meals, or grab-and-go options, depending on your schedule and audience.

Utilities & Technical Support
East Hall is equipped with built-in electrical service, water access, internet connectivity, and rigging capabilities for exhibits or entertainment setups.
A Venue That Scales With Your Vision
Bring your vision to life at VBC’s East Hall, Huntsville’s premier venue for conventions, trade shows, corporate gatherings, or social events. Our versatile space, full-service amenities, and expert staff ensure every detail is handled, creating a seamless and memorable experience for you and your guests.
24,900
square feet of excitement
Multiple
room configurations
1
roll-up door

View All Venue Details
East Hall Frequently Asked Questions
Yes. The entire venue is ADA compliant, with accessible entrances, restrooms, and seating.
Our professional A/V team provides a full suite of services, including projection, lighting, staging, and sound.
Absolutely. The VBC’s in-house catering team offers flexible menu options for breakfast, lunch, receptions, and banquets.
We recommend reserving at least 6 months in advance for major events. Our team can confirm current availability and help secure your dates.
Explore the VBC Campus

Propst Arena
Home to large-scale concerts, sporting events, and major productions with seating for up to 9,000 guests.
Learn more about Propst Arena
Mark C. Smith Concert Hall
A premier theater for hosting Broadway shows, orchestras, and world-class performers.
Learn more about Mark C. Smith Concert Hall
Mars Music Hall
A modern, intimate venue for live events and music lovers, featuring stellar acoustics and an electric atmosphere.
Learn more about Mars Music Hall
Playhouse
Perfect for smaller theatrical productions, lectures, or private performances with cozy seating and classic charm.
Learn more about Playhouse
Saturn Ballrooms
A sleek, modern space ideal for galas, receptions, and corporate events with a sophisticated atmosphere.
Learn more about Saturn Ballrooms
East Halls
Versatile, spacious halls perfect for trade shows, expos, and large-scale community gatherings of any kind.
Learn more about East Halls
South Halls
Expansive, flexible event halls designed to host conventions, exhibits, and medium to large-scale events.
Learn more about South Halls
Rhythm on Monroe
A lively restaurant and rooftop bar offering Southern-inspired cuisine, craft cocktails, and stunning downtown views.
Learn more about Rhythm on MonroeYour Next Unforgettable Experience Begins Here
From live shows to special occasions, it all begins right here, at Huntsville’s hub for entertainment and events.

